+12º
ясно
ветер 4,5 м/с, З

Реклама: ООО "ОЛЕАНДР-МЕД", ИНН 9111026025

Реклама: ООО "Похоронный дом "Феникс", ИНН 9111027526

Реклама: ИП Бехтер А.А., ИНН 911113102616

Реклама: Самозанятый Вандышев Александр Николаевич, ИНН 911113162887

Реклама: ИНН 910806164654 - ИП Лукьянова А.А.

Реклама: ИП Бережной А.Г., ИНН 911116150093

Реклама: ИП Кравченко Е. Л., ИНН 911109375963

Реклама: ООО «НПП «Вентос-Крым» ИНН 9111011396 

Реклама: ООО "ПРАЙМЕР", ИНН 9102054851

Архив
«    Июль 2022    »
ПнВтСрЧтПтСбВс
 123
45678910
11121314151617
18192021222324
25262728293031
02.07.2022 11:00 2 224 Новости » Бизнес новости

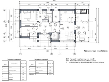
Проектирование и строительство дома в Керчи

При проектировании и строительстве дома важно определиться с архитектурным стилем. Часто домовладельцы останавливаются на выборе спокойной и сдержанной классики. Но в последнее время все чаще предпочтение отдается функциональным современным, порой и необычным стилям.

 

Мы хотим Вам представить необычный и, пожалуй, самый смелый и выразительный стиль - Райта (Прерий). Современный дом, выполненный в стилистике прерий, обладает необычным внешним видом, что в свою очередь достигается грамотным комбинирование природных и экологичных облицовочных материалов, а многоскатная кровля подчеркивает его индивидуальность.

 

  

Главный принцип стиля основывается на гармонии с природой. Данный дом умеет удивить и влюбить с первого взгляда, он имеет просторную террасу, что позволяет комфортно и с удовольствием проводить время на свежем воздухе в тёплое время года и радует красивым видом в зимний период.

 

Помимо своего внешнего вида, дом продуман до мелочей, он удобен в эксплуатации и что, пожалуй, самое важно, надежен.

 

Смотрите видеообзор первого этапа работ: Устройство УШП плиты для одноэтажного дома от компании «КЕРЧЬРЕМОНТ»

 

Долговечность достигается за счет качественных материалов, а также профессионализма строительных бригад.

 

Благодаря тому, что все работы выполняются одной компанией, Вы сможете просто контролировать процесс и не тратить времени на поиск хороших специалистов. На объекте будут работать опытные строители, дизайнеры, архитекторы, которые готовы дать гарантию высокого качества своей работы.

 

Подписывайтесь на наши соц.сети, чтобы быть в курсе всех событий связанных с ремонтом и строительством в Керчи, а также следить за ходом работ на наших объектах:

Вконтакте

https://vk.com/kerchremont

https://vk.com/kerch_decor

Одноклассники

https://ok.ru/kerchremon

Записаться на экскурсию по нашим объектам, на встречу в офисе-шоуруме компании или просто проконсультироваться можно по данным контактам:

Телефон: +7 (978) 715 70 60 (также WhatsApp/Viber)

Email: kerchremont@mail.ru

Сайт: https://kerchremont.com

Наш офис, магазин и шоу-рум находится по адресу:

г. Керчь, ул. Сморжевского 4

 

 

Если вы увидели опечатку в тексте самой статьи, то выделите её и нажмите Ctrl+Enter.

Добавить комментарий
Информация
Комментировать статьи на сайте возможно только в течении 10 дней со дня публикации.

Реклама на ФМ

Реклама: ИП Добрынин Д.В., ИНН 911109540871

Реклама: ИП Ищенко Е. А., ИНН 911100179516

Реклама: ООО «Зимний Сад» , ИНН 9111004342

Реклама: ИП Киргетова Д. С., ИНН 9 111 097 444 66

Реклама: ИП Павленко М. Р., ИНН 911103871108

Реклама: Гераскевич Галина Валерьевна , ИНН 911104425868

Магазин «AUTOРАЙ» в Керчи!

Реклама: ИП Аникин Д.А., ИНН 911108952720

Реклама: ИП Люшняк Р. А., ИНН 911100108113

Реклама: ИП Цинтынь Е. В. , ИНН 911100113579

Реклама: ИП Войтов В. В., ИНН 911101031030

Реклама: ИП Кучеренко Э.В., ИНН 911100186665

Реклама: ИП Синкявичус А. В., ИНН 911100046562

Юридические услуги в Керчи. Громада София Валерьевна

Реклама: Юрист Громада С. В., ИНН 110204076670

Реклама: ИП Батурина-Казбанова Виктория Геннадьевна, ИНН 910510158934

Фабрика натяжных потолков «Виктория»

Реклама: ИП Бережной А.Г., ИНН 911116150093

Наверх